KAPCSOLATFELVÉTEL
Ingatlan jellege
családi ház
Belső terület
138 m²
Telek terület
1600 m²
Tájolás
délkelet
Építési állapot
új
Építési mód
tégla
Szobák száma
5 szoba
Terasz
18 m²
Épület szintje
földszintes.
Épült
2025
Ingatlan állapot
kívül: új
belül: új
Klíma
előkészítve
Szigetelés
15 cm
Ablak szerkezete
3 rétegű thermoplan
Fűtés
hőszivattyús
Komfort
duplakomfort
Parkolás
van fedetlen felszíni beálló
Közműállapot
csatorna: bekötve
gáz: nincs
villany: bekötve
víz: bekötve
Energetika
nincs megadva
Pest megye, Inárcs
Irányár
(797.1 E Ft/㎡)
Szobák
Emelet
Terület
Telek terület
BERUHÁZÓI ÁRON!
Megkezdett építkezés!
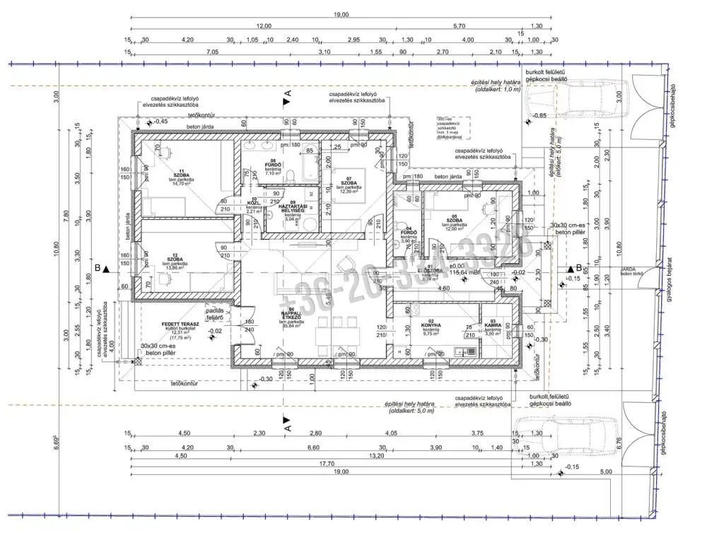
Eladó Inárcson 1600 nm-es telekre épülő, nettó 129 nm-es, remek térszervezésű, tágas terekkel rendelkező családi ház, gépkocsi beállóval.
A gondos tervezésnek köszönhetően az ingatlan minden igényt kielégít:
-terasz kapcsolatos 36 nm-es nappali-étkező, konyha (10 nm), kamra, 3 hálószoba (12, 13, 14 és 15 nm) 2 fürdőszoba, háztartási helyiség, előszoba.
Az energiahatékonyságot a mai kor igényeinek megfelelő, korszerű építőanyagok és technológia biztosítja:
-főfalak 30-a Porotherm okos téglából készülnek, 15 cm-es dryvit hőszigeteléssel,
-a fűtés hőszivattyús rendszer, padlófűtéssel,
-3 rétegű, hőszigetelt üvegezésű, fehér színű műanyag nyílászárók, igény esetén – értékegyeztetéssel – redőnnyel, szúnyoghálóval felszerelve,
-redőnytok előkészítés,
-klíma kiállás előkészítés,
-választható burkolatok, szaniterek, belső ajtók.
A vételár 1 db gépkocsi beállót tartalmaz.
Az átadás várható ideje: 2026. április.
Hívjon a részletekért, a részletes műszaki tartalomért.
Inárcs Budapesttől 40 km-re helyezkedik el. Autóval (M5) autóbusszal (Népliget autóbusz állomás) és vonattal is megközelíthető.
A településen felnőtt és gyermekorvosi rendelő, gyógyszertár, fogorvos, bevásárlási lehetőségek, általános iskola, óvoda, bölcsőde, egyszóval minden elérhető, ami a mindennapokhoz szükséges.
Irodánk ÚJ ÉPÍTÉSŰ ingatlanok specialistája, felkészült értékesítőkkel!
Jogi háttérrel (kedvező díjazással) és az egyik legjobb, bank semleges HITELKÖZVETÍTŐVEL segítjük vásárlását.
Hitelszakértőnk teljes körű ügyintézéssel áll Vevőink rendelkezésére, legyen szó OTTHON START, CSOK+, BABAVÁRÓ vagy a legjobb piaci hitelről.
Új építésű ingatlanjainkat BERUHÁZÓI ÁRON értékesítjük!
Amennyiben értékesíteni kívánja ingatlanát, irodánk egyedi, kedvező ajánlattal áll rendelkezésére!
belül: új
gáz: nincs
villany: bekötve
víz: bekötve
Pest megye, Inárcs
Hitelkalkulátor

+36 20 334 3328,
arenaingatlanok@gmail.com
KAPCSOLATFELVÉTEL
Ingatlan jellege
családi ház
Belső terület
138 m²
Telek terület
1600 m²
Tájolás
délkelet
Építési állapot
új
Építési mód
tégla
Szobák száma
5 szoba
Terasz
18 m²
Épület szintje
földszintes.
Épült
2025
Ingatlan állapot
kívül: új
belül: új
Klíma
előkészítve
Szigetelés
15 cm
Ablak szerkezete
3 rétegű thermoplan
Fűtés
hőszivattyús
Komfort
duplakomfort
Parkolás
van fedetlen felszíni beálló
Közműállapot
csatorna: bekötve
gáz: nincs
villany: bekötve
víz: bekötve
Energetika
nincs megadva